
Цоколь
16,30 м² (2,65×6,70 м)
600р.
~37 р./м²
Электроотопление
Цоколь
23,21 м² (3,80×6,56 м)
812р.
~35 р./м²
Электроотопление
Цоколь
17,21 м² (2,75×6,56 м)
725р.
~42 р./м²
Электроотопление
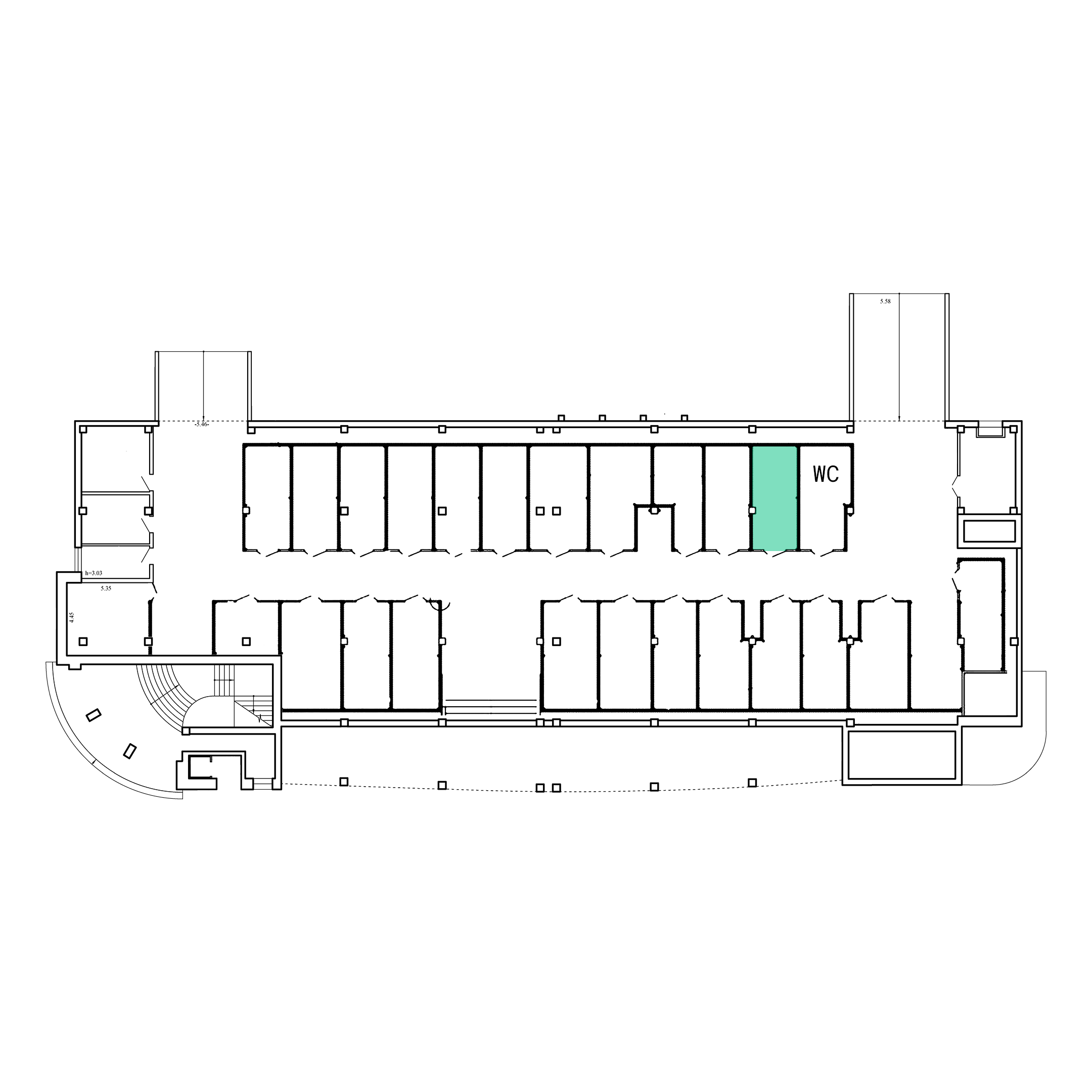
Цоколь
17,58 м² (2,81×6,34 м)
740р.
~42 р./м²
Электроотопление
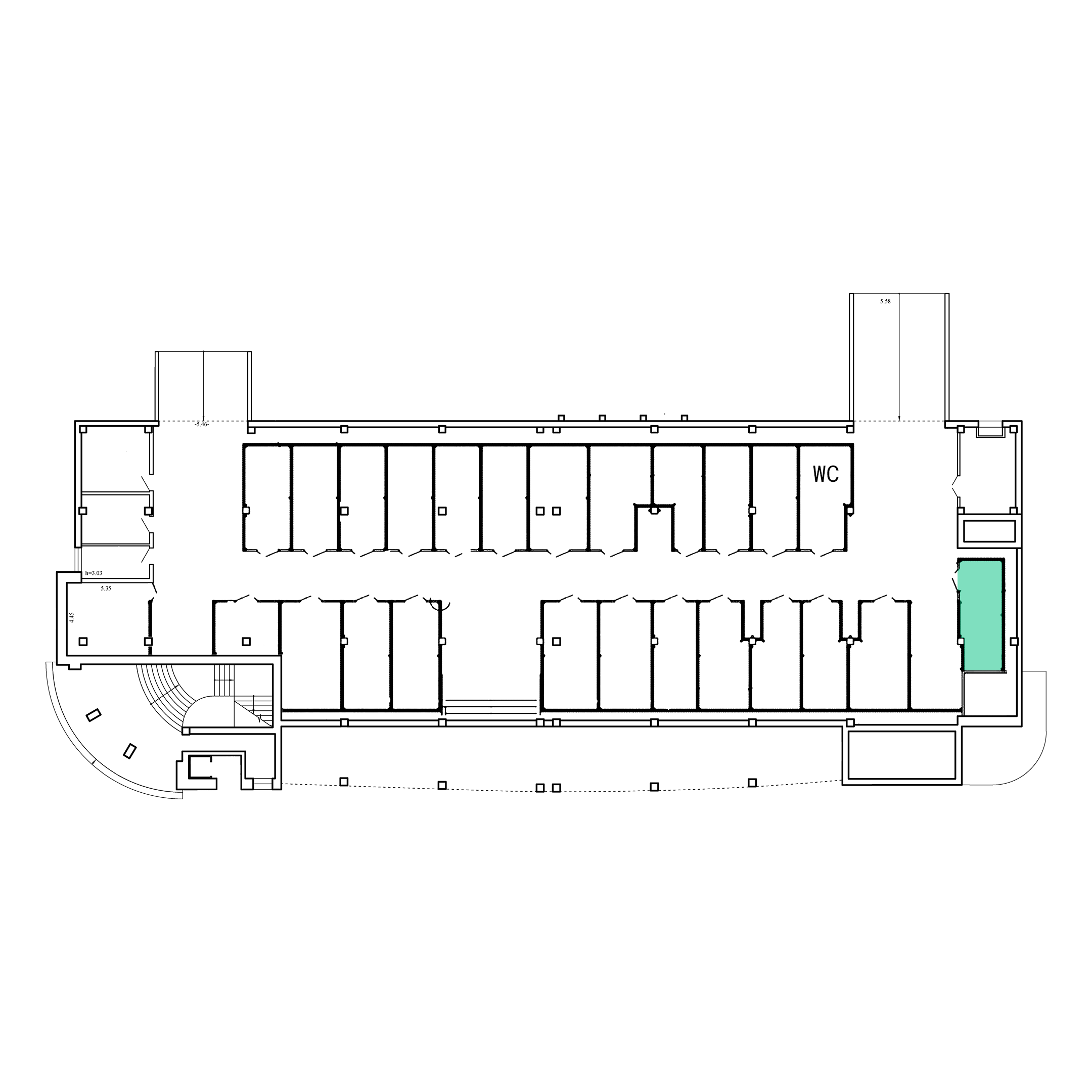
Цоколь
18,43 м² (3,07×6,56 м)
780р.
~42 р./м²
Электроотопление
Цоколь
17,77 м² (2,81×6,34 м)
750р.
~42 р./м²
Электроотопление
Цоколь
15,76 м² (3,08×6,34 м)
670р.
~43 р./м²
Электроотопление
Цоколь
17,52 м² (2,71×6,56 м)
720р.
~41 р./м²
Электроотопление
Цоколь
17,69 м² (2,73×6,56 м)
780р.
~44 р./м²
Электроотопление
Цоколь
19,91 м² (3,06×6,56 м)
1010р.
~51 р./м²
Электроотопление
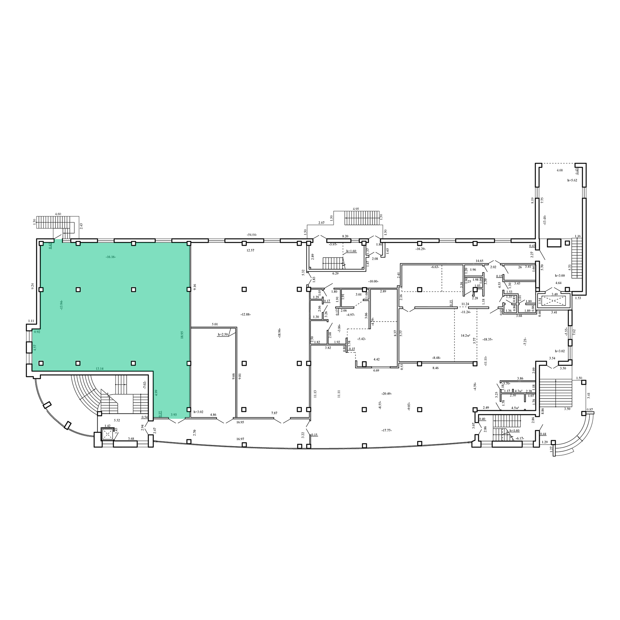
Этаж 1
247,20 м²
16000р.
~65 р./м²
Интернет и телефон
Кондиционирование
Канализация и вода
Приточно-вытяжная вентиляция
Внутреннее видеонаблюдение
Отдельный служебный вход
ООО «Грамотный подход» © 2026
Все права защищены
УНП 591046202